Tesisler İçin Etkili Çözüm
Kojenerasyon
Gaz jeneratörlerinde, kojenerasyon, diğer adıyla “kombine ısı, güç sistemleri” ( combined heat and power ) CHP kullanılmadığında, kullanılan enerjiden %30-45 civarında bir verim ile sadece elektrik enerjisi elde edilir .
Fakat Jeneratörde kojenerasyon yada kombine ısı güç sistemleri (CHP) kullanıldığında, jeneratörün oluşturduğu ısı enerjisi de kullanılır ve enerjiye dönüştürülerek toplamda enerji verimliliği %85-%95 aralığına çıkar.

Çevreci
Verimli
Tasarruflu
Kesintisiz GÜÇ!
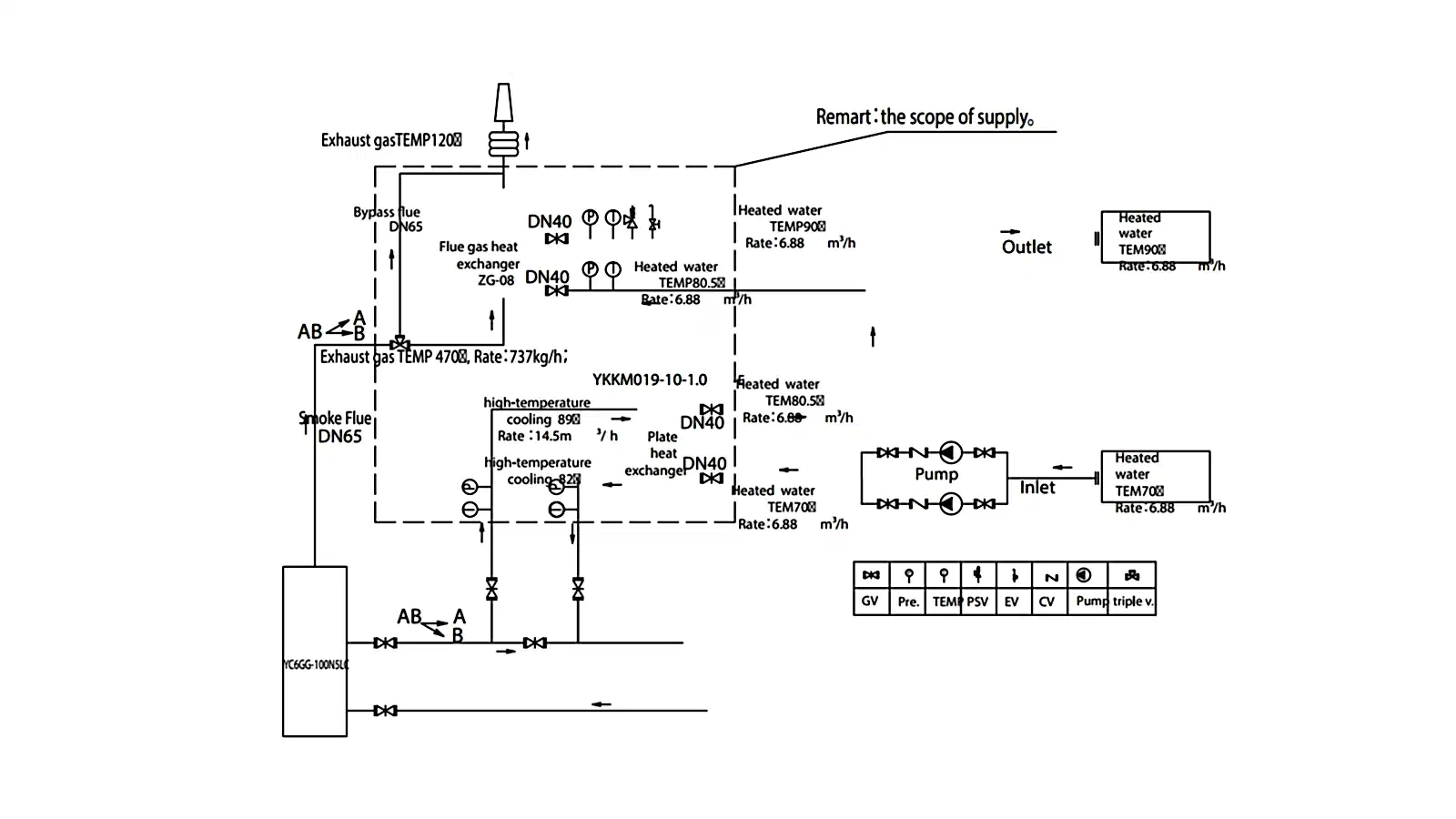
Kojenerasyon Şeması
Kojenerasyon sistemleri şemada göründüğü şekli ile jeneratör, konteyner kabin üstü ile komplike tek parça olabileceği gibi, jeneratör haricinde jeneratörün çalıştığı jeneratör odasınada kurulabilir.
Kojenerasyon Parçaları
Kayıplar enerjiye dönüştürülerek, aynı miktarda yakıt ile enerji kullanım çeşitliliği arttırıldığından, sağlanan fayda, verim artacağından enerji maliyetleri azalır.
Daha çevrecidir, sera gazı salınımı düşmektedir.
Tüm Sistem
Bir Konteynerda!
Kojenerasyon sisteminin basit şeması ( ihtiyaca uygun olarak geliştirilebilir )
Güçbir Kojenerasyon Güç Aralığı
Güçbir Jeneratör, 30 kW – 2000 kW güç aralığındaki GAZ Jeneratörleri için kojenerasyon sistemleri sağlamaktadır.


















